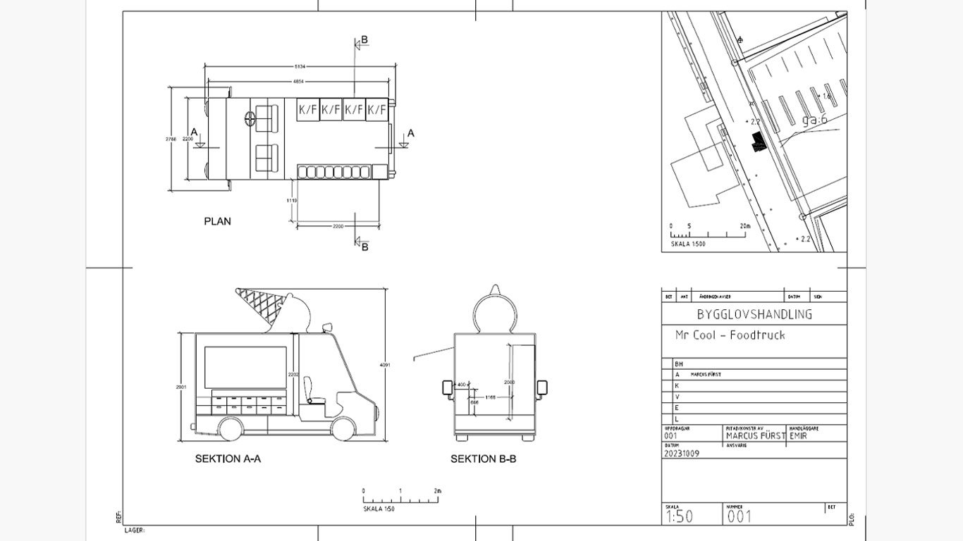
Projekt 1: Food Truck

Skoluppgift

Utbildningens första övning var att skapa bygglovshandlingar för en foodtruck i AutoCad.