Projekt 5: Trähus

Skoluppgift

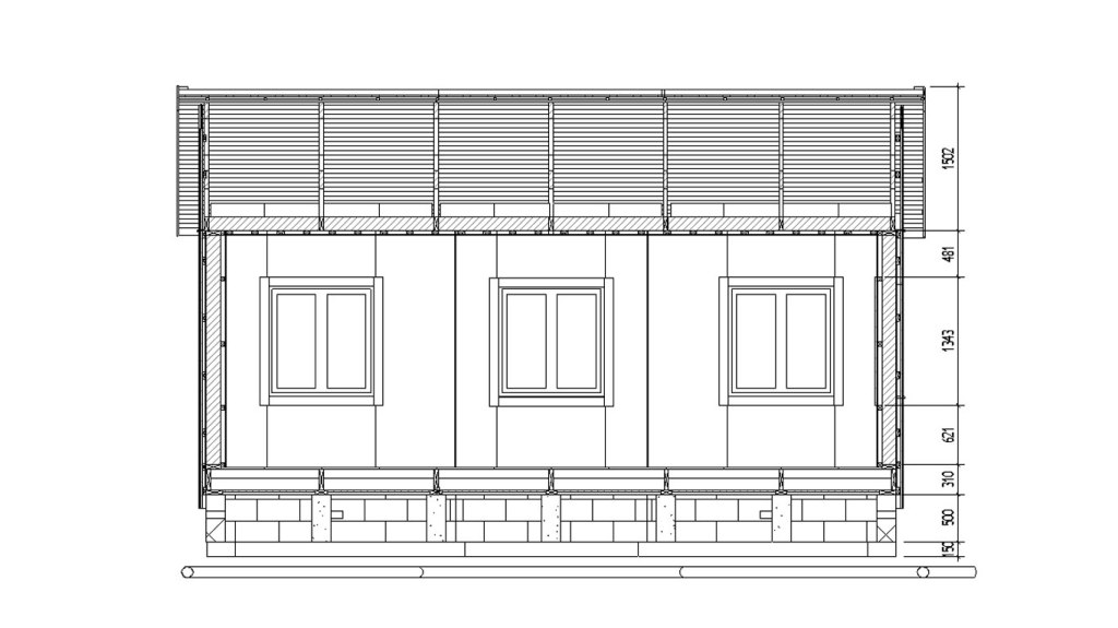
Projektet är en övning i att modellera ett trähus i Revit byggtekniskt korrekt, bräda för bräda. Funktioner i Revit som använts är : Displacements, Callouts samt Mängdning