Projekt 3: Villa

Skolprojekt i Revit

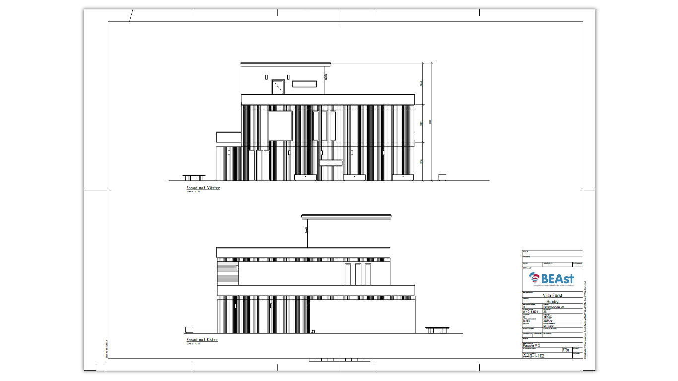
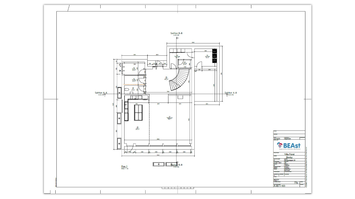
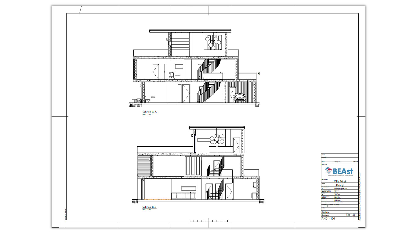
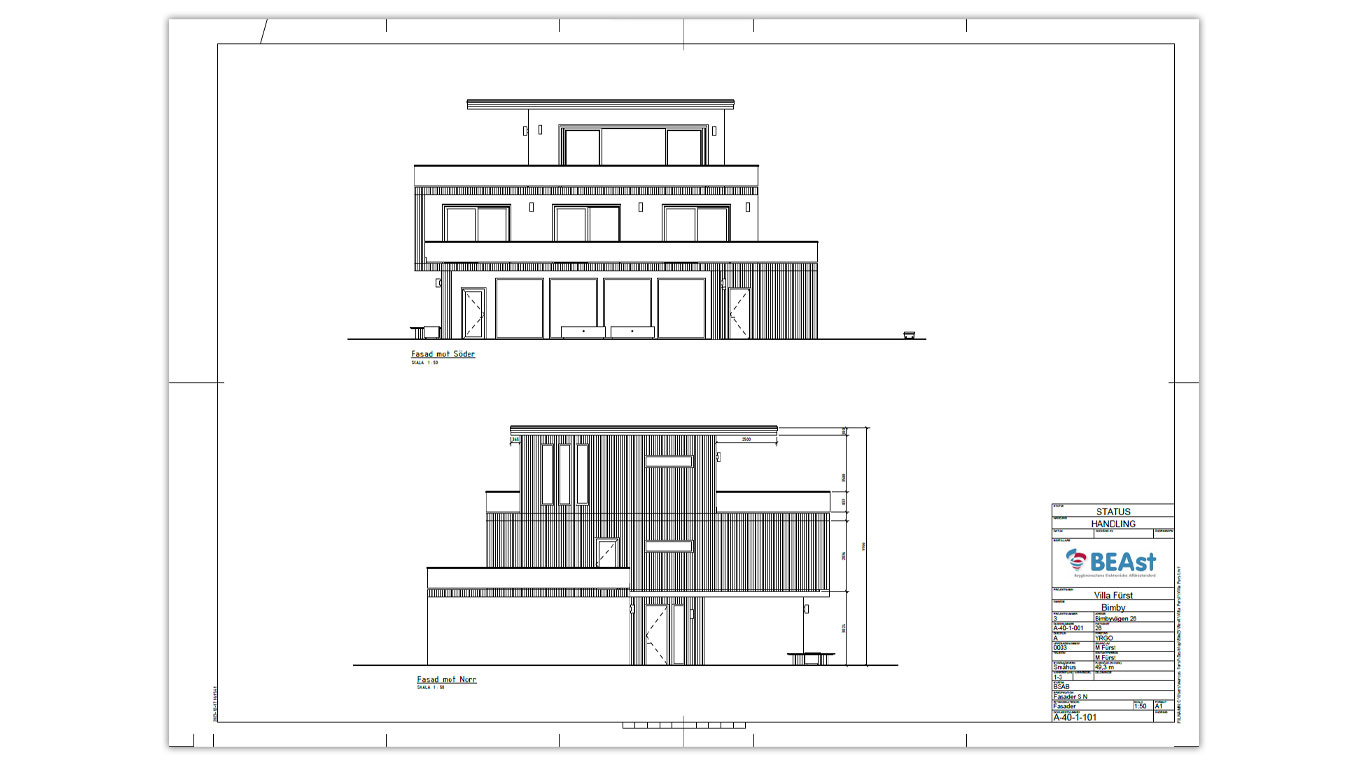
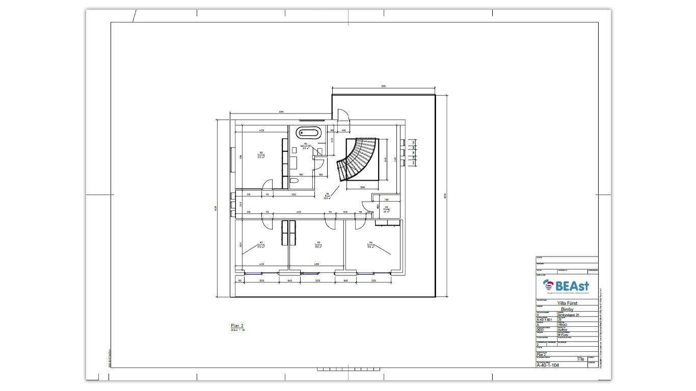
Uppdraget bestod i att en villa skulle ritas ut på en befintlig tomt med angivna koordinater i det fiktiva bostadsområdet Bimby. Villan är 331 kvm, fördelat på tre våningar.